Suche

€ 0 bis € 7.000

Weitere Suchoptionen...
Seite gefunden 0 Suchergebnisse
Suchergebnisse

Stilvolles Wohnen mit zwei Balkonen und moderner Ausstattung


Objekt ID: 33038
€ 688,50
zzgl. BK & HK
Bahnhofstraße 13,
zu Favoriten hinzufügen
59

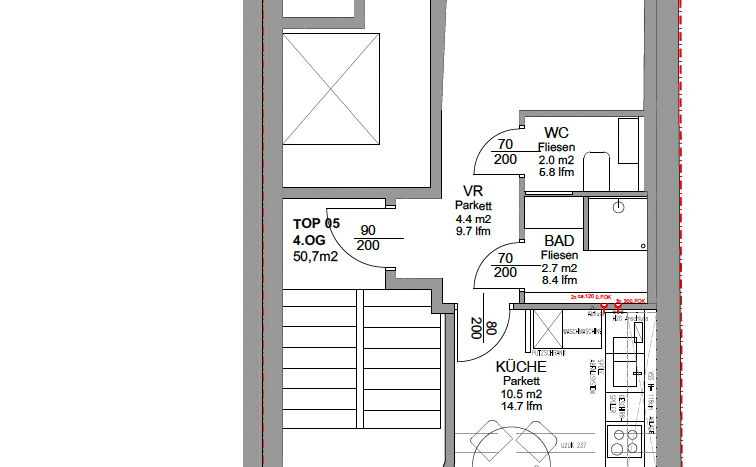
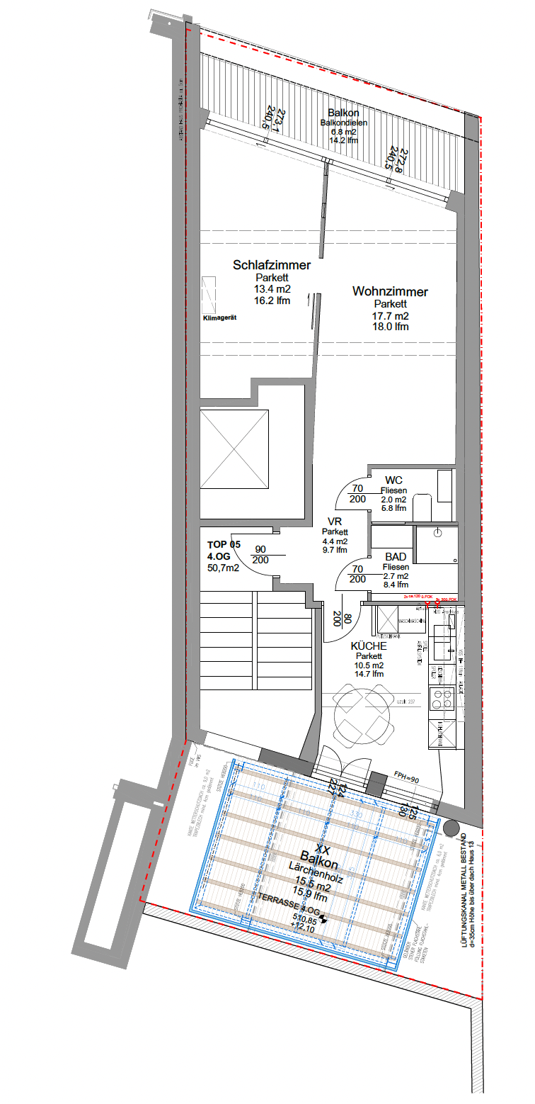
Diese frisch renovierte 2-Zimmer-Wohnung mit ca. 51 m² überzeugt durch ihre zentrale Lage direkt beim Hauptbahnhof und eine moderne, hochwertige Ausstattung auf neuestem Stand der Technik.

Ein innovatives und modernes Lichtkonzept zieht sich durch die gesamte Wohnung und sorgt für ein stimmungsvolles Ambiente. Zudem ist in allen Räumen ein integrierter Radio-/Lautsprecher verbaut, der höchsten Wohnkomfort bietet. Licht und Heizung lassen sich bequem über ein modernes Touchdisplay steuern – zeitgemäßer Wohnkomfort auf Knopfdruck.

Die neue, elegante Küche ist modern und hochwertig ausgestattet und lässt keine Wünsche offen. Das neu gestaltete Badezimmer begeistert mit stilvollen, eleganten Möbeln und einem durchdachten Design.

Ein besonderes Highlight ist der Luxus von zwei Balkonen: ein kleinerer Ostbalkon für den Morgenkaffee in der Sonne und ein großer Westbalkon für entspannte Abende im Freien.

Highlights:

  • Erstbezug nach hochwertiger Renovierung
  • Klimaanlage für heiße Sommer
  • ca. 51 m² Wohnfläche
  • Innovatives Lichtkonzept & integriertes Soundsystem
  • Steuerung von Licht & Heizung über modernes Touchdisplay
  • Neue, moderne und hochwertige Küche inkl. Elektrogeräte
  • Neues Badezimmer mit eleganten Möbeln
  • Zwei Balkone: Ost- & Westausrichtung
  • Großzügiger Wohn- und Schlafbereich
  • Top-Anbindung durch unmittelbare Nähe zum Hauptbahnhof

Hinweise:

  • Lift vorhanden – die Wohnung liegt im 4. OG, der Lift fährt bis ins 3. OG (ein Stockwerk zu Fuß)
  • Kein Kellerabteil
  • Kein Parkplatz inkludiert (Tiefgaragenplatz im Projekt MaxPalais, Einfahrt Kaigasse, optional um ca. € 100/Monat anmietbar)

Diese stilvolle 2-Zimmer-Wohnung ist ideal für Singles, Paare oder Pendler, die urbanes Wohnen in bester Lage mit modernem Luxus verbinden möchten.

 

Befristung: 3 Jahre

Mietbeginn: ab sofort

 

Es wird keine Haftung für die Richtigkeit und Vollständigkeit der Daten übernommen. Irrtümer und Änderungen sind vorbehalten.

Aufgrund der Nachweispflicht gegenüber dem Eigentümer sowie in Entsprechung des FAGG (Fern- und Auswärtsgeschäfte-Gesetz) und des VRUG (Verbraucherrechte-Richtlinie-Umsetzungsgesetz) ersuchen wir Sie um Verständnis, dass wir nur Anfragen mit vollständigem Namen, E-Mailadresse und Telefonnummer bearbeiten dürfen. Ohne vollständige Angaben können wir Ihnen keine weiteren Auskünfte zur Immobilie erteilen.

Der Immobilienmakler erklärt, dass er – entgegen dem in der Immobilienwirtschaft üblichen Geschäftsgebrauch des Doppelmaklers – einseitig nur für den Vermieter tätig ist.

Fläche: 51 m2
Zimmer: 2
Schlafzimmer: 1
Badezimmer: 1
Stockwerk: 4
Heizung: Fernwärme
HWB: 126
HWB Energieklasse: D
fGEE: 1,49
fGEE Energieklasse: C
Objekt ID: 33038
Miete (inkl. MwSt): € 688,50
Betriebskosten (inkl. MwSt): € 224,82
Heizkosten (inkl. MwSt): € 114,40
Gesamtbelastung (inkl. MwSt): € 1.027,71
Kaution: € 2.200
Einbauküche
Fahrstuhl
Balkon
Adresse: Bahnhofstraße 13
Bundesland:
PLZ: 9500
Land: Austria
Open In Google Maps

Ähnliche Objekte

Kleine 2-Zimmer Wohnung in Landskron – Leben...

€ 656,65
Zur Vermietung steht eine helle und freundliche 2-Zimmer-Wohnung mit ca. 47 m2 Wohnfläche in ruhiger Lage. Die Woh ...
Zur Vermietung steht eine helle und freundliche 2-Zimmer-Wohnung mit ca. 47 m2 Wohnfläche in ruhiger Lage. Die Woh ...
topmiete2023

Wo Geschichte auf Geborgenheit trifft – Hist...

€ 1.500
Dieses außergewöhnliche, liebevoll restaurierte Haus aus dem 18. Jahrhundert vereint historischen Charme mit modern ...
Dieses außergewöhnliche, liebevoll restaurierte Haus aus dem 18. Jahrhundert vereint historischen Charme mit modern ...
33 300 m2Mehr anzeigen...
topmiete2023

Altstadtflair trifft modernen Wohnkomfort &#...

€ 799,03
Diese ca. 63 m² große Wohnung befindet sich in einem stilvollen Stadthaus mit historischer Fassade im Herzen von Vi ...
Diese ca. 63 m² große Wohnung befindet sich in einem stilvollen Stadthaus mit historischer Fassade im Herzen von Vi ...
topmiete2023
agent-images

office@topmiete.at

Kontaktaufnahme


Objekte vergleichen