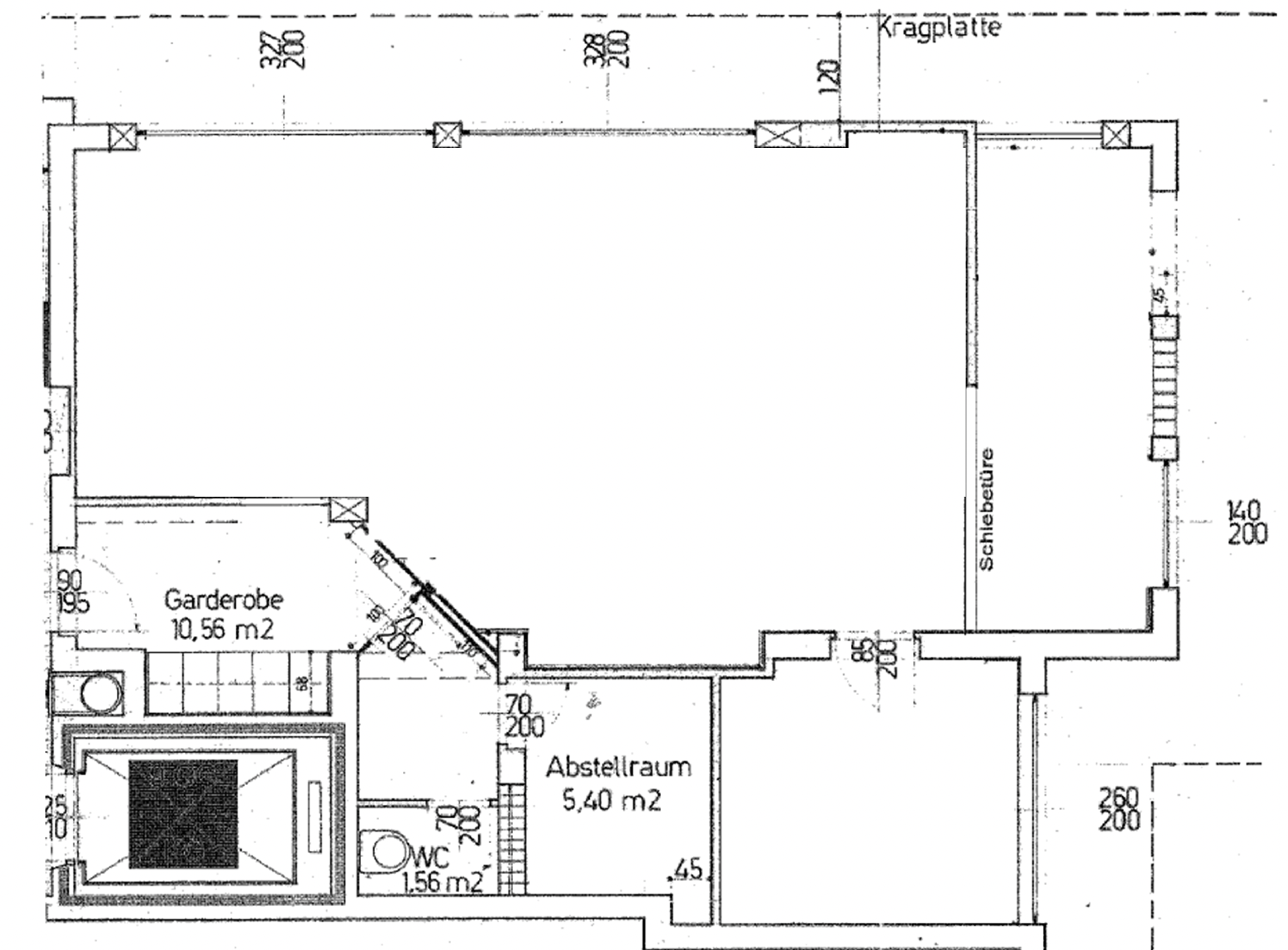
Diese vielseitig nutzbare Geschäftsfläche mit ca. 90,70 m² befindet sich im beliebten Stadtteil Villach-Lind. Große Fensterfronten sorgen für hervorragende Sichtbarkeit und bieten ideale Möglichkeiten zur Werbepräsentation. Die Räumlichkeiten sind barrierefrei begehbar und eignen sich perfekt für verschiedene Branchen – ob Hundesalon, Friseurbetrieb, Arztpraxis, Therapiezentrum oder Büro-/Dienstleistungsfläche.
Dank der zentralen Lage in einem gut frequentierten Stadtteil profitieren Sie von einer hohen Passantenfrequenz und optimaler Erreichbarkeit.
Highlights:
- 90,70 m² Geschäftsfläche
- Große Fensterfronten mit Werbemöglichkeiten
- Barrierefreier Zugang
- Vielseitige Nutzungsmöglichkeiten
- Beliebte Lage in Villach-Lind
Bezug: ab sofort
Befristung: nach Absprache
Provision: 3 Nettomonatsmieten + 20% USt
Es wird keine Haftung für die Richtigkeit und Vollständigkeit der Daten übernommen. Irrtümer und Änderungen sind vorbehalten.
Aufgrund der Nachweispflicht gegenüber dem Eigentümer sowie in Entsprechung des FAGG (Fern- und Auswärtsgeschäfte-Gesetz) und des VRUG (Verbraucherrechte-Richtlinie-Umsetzungsgesetz) ersuchen wir Sie um Verständnis, dass wir nur Anfragen mit vollständigem Namen, E-Mailadresse und Telefonnummer bearbeiten dürfen. Ohne vollständige Angaben können wir Ihnen keine weiteren Auskünfte zur Immobilie erteilen.
Der Immobilienmakler steht in einem wirtschaftlichen Verhältnis zum Vermieter und tritt als Doppelmakler auf, das heißt, er ist sowohl für den Mieter als auch für den Vermieter vermittelnd tätig.






























